Ranta

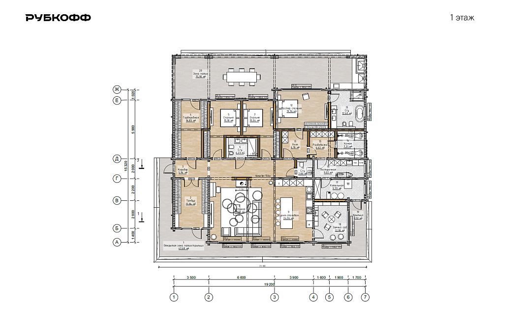
Площадь 405 м²
Размер 19,2x15,3 м
Этажность 1 этаж
Кол-во спален 3
Кол-во санузлов 3
Обсудить проект
Оставить заявку
О проекте
Проект Ranta - это дом для истинного ценителя загородной жизни, где каждый элемент подчеркивает уникальный характер и стремление к абсолютному комфорту. Просторный одноэтажный дом площадью 405 м², в котором стирается грань между внутренним уютом и природной гармонией.
Здесь все подчинено философии наслаждения жизнью: в центре дома находится просторная гостиная с камином, создающая невероятно тёплую атмосферу для вечеров в кругу близких. Для ценителей роскошного отдыха и релаксации мы разместили частный хаммам, а зимний сад наполняет интерьер жизнью и светом в любое время года.
Остеклённая терраса с собственной зоной BBQ становится главным местом притяжения летом, плавно продолжая жилое пространство. Отдельный навес для автомобиля, выполненный в единой стилистике с домом, завершает гармоничный ансамбль усадьбы.
Ranta - это не просто дом, а воплощение мечты о загородной жизни, где каждая деталь создана для удовольствия и отдыха.

Планировка

Комплектации
Фундамент

Фундамент: железобетонные забивные сваи 150х150 с оголовком по спец. заказу Рубкофф Ростверк 200х200 лиственница (антисептированный), геология и привязка: все включено.

Конструктив

Конструктив: из клееного бруса 200х185 (экспортный клей, европейская сертификация). Лаги этажей, все необходимые материалы (включая узлы силы, rothoblaas – включены). Сверловка под скрытую электрику, чаши, вертикальный транспорт: включено

Высота этажей

Высота этажей: не менее 2.8–2.9м чистовая высота первого этажа, не менее 1.6м аттиковый подъем (у одноэтажных домов: не менее 2.6м минимальный подъем).

Стропильная система

Стропильная система: сухая строганная.

Кровля

Кровля: металлочерепица (см примечание в нюансах) с утеплением 200мм (Paroc Extra Финляндия), снегозадержатели, водосточная система: включена.

Логистика и работа включены

Логистика и работа:
Выезды прораба Трансфер бригад
Доставка материала
Работы по погрузке и разгрузке
Вывоз строительного мусора
Доставка БИОтуалета, бытовки

Энергосберегающие окна

Энергосберегающие окна: VEKA 70 мм с ламинацией.

Отделка черновая

Отделка черновая: Проектирование инженерных сетей. Монтаж инженерных систем. Сервис газовых котлов и коммуникаций. Электротехнические работы включая установку конечного сертифицированного оборудования. Финишная стяжка под плитку/керамогранит и фанера под инженерную доску/паркет.

Инженерные сети

Инженерные сети: Отопление, вентиляция, водоснабжение, канализация и электрика

Внешняя чистовая отделка

Внешняя чистовая отделка: покраска и герметизация дома, монтаж и подшив свесов кровли, укладку полов и террас, установку наличников и иные работы для доведения дома под ключ.

Внутренняя чистовая отделка

Внутренняя чистовая отделка: подшив потолков, укладку полов, финишное покрытие стен, точечных светильников, розеток и выключателей.

Мебель и сантехника

Мебель и сантехника: авторская мебель из качественной древесины и сантехника согласно дизайн проекту.

Холодный контур
от 70 000 ₽ за м2
Заказать
Тёплый контур
от 75 000 ₽ за м2
Заказать
White box
Индивидуально
Заказать
Под тапочки
Индивидуально
Заказать

Визуализация

Работа с эскизным проектом — процесс определения наиболее успешных, качественных и функциональных решений. Составление четкой документации позволяет подробно отразить каждый этап работ и обеспечить прозрачность в процессе реализации проекта.

Ход строительства


Фасадные работы и монтаж инженерных систем успешно завершены. В нашем проекте из клееного бруса установлено остекление — ключевой элемент, который уже преобразил его облик. Продолжаем работы по финишной отделке, приближая дом к полному соответствию с архитектурным замыслом.

Оставьте заявку,
и получите бесплатнуюконсультацию архитектора
Оставьте заявку, и получите  бесплатную консультацию архитектора

Нажимая на кнопку вы соглашаетесь с условиями политики конфиденциальности и обработки персональных данных

В нашем Telegram-канале
мы рассказываем все
о строительствеПодписаться
Похожие проекты
Мы используем cookies
Этот сайт использует файлы cookies для обеспечения удобства пользователей, анализа трафика и персонализации контента. Продолжая пользоваться сайтом, вы соглашаетесь с использованием файлов cookies.
Подробнее
А вы знали, что строительная компания Рубкофф строит «под тапочки»?