Emerald

Эстетика минимализма. Пространство, где природа становится частью архитектуры.

Площадь 486 м²
Размер 16.2x19.7 м
Этажность 2 этажа
Кол-во спален 4
Кол-во санузлов 4
Обсудить проект
Оставить заявку
О проекте

Проект, который начинается не с планировки, а с ощущения покоя. Четкая геометрия, природные фактуры, мягкий, продуманный свет — здесь каждый элемент работает не на внешний эффект, а на внутреннюю глубину. Это дом, в котором хочется дышать. Жить. Замедляться. 

 

Этот дом выбирают не по квадратам, а по тишине, которая остается с вами внутри. Без суеты. Без компромиссов. Только настоящее.

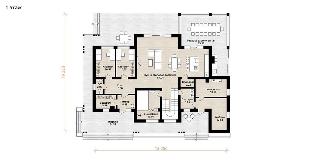
Планировка продумана до мелочей и подстроена под разные ритмы жизни. Центральное пространство — кухня-гостиная-столовая площадью 57 м² с выходом на застекленную террасу. Зона второго света наполняет интерьер воздухом и визуальной легкостью. Первый этаж также включает два кабинета, хамам, постирочную и хозяйственный блок — все для комфорта и упорядоченного быта.


На втором этаже расположена мастер-спальня с собственным кабинетом и выходом на балкон, две дополнительные спальни и просторный санузел. Уединение, тишина и продуманное зонирование делают это пространство по-настоящему гармоничным.


Фасады выполнены в гармонии с природным ландшафтом: вертикальная деревянная рейка, декоративный бетон, панорамные окна и чёрные алюминиевые рамы формируют сдержанный, выразительный архитектурный облик.

 Плоская двускатная крыша с широкими свесами защищает террасы и придает дому уверенный силуэт. Встроенное фасадное освещение подчеркивает геометрию в вечернее время, создавая эффект мягкой глубины. Просторный балкон со стеклянным ограждением завершает композицию.

Комплектации
Фундамент

Фундамент: железобетонная плита 250мм (бетон не ниже М350, арматура d8-12мм), закладные для инженерии, гидроизоляция под стены, геология и привязка: все включено.

Стены

Стены: из керамического блока Porotherm 38 Thermo, Porotherm 25 внутри. Теплый кладочный раствор Porotherm, армопояса и жб перекрытия: включено.

Высота этажей

Высота этажей: не менее 2.8–2.9м чистовая высота первого этажа, не менее 1.6м аттиковый подъем (у одноэтажных домов: не менее 2.6м минимальный подъем). Чердачное перекрытие сухое строганное, если есть в проекте.

Стропильная система

Стропильная система: сухая , мауэрлат 200х200.

Кровля

Кровля: металлочерепица (см примечание в нюансах) с утеплением 200мм (Paroc Extra Финляндия или аналог), снегозадержатели, водосточная система: включена.

Логистика и работа включены

Логистика и работа: Выезды прораба. Трансфер бригад. Доставка материала. Работы по погрузке и разгрузке. Вывоз строительного мусора. Доставка БИОтуалета, бытовки

Энергосберегающие окна

Энергосберегающие окна: VEKA 70 мм с ламинацией.

Инженерные сети

Инженерные сети: Отопление, вентиляция, водоснабжение, канализация и электрика

Отделка черновая

Отделка черновая: Черновая штукатурка внутри.

Внешняя чистовая отделка

Внешняя чистовая отделка: Чистовая декоративная штукатурка наружных стен дома.

Внутренняя чистовая отделка

Внтуренняя чистовая отделка: Подшив потолков, укладку полов, финишное покрытие стен, точечных светильников, розеток и выключателей.

Мебель и сантехника

Мебель и сантехника: Авторская мебель из качественной древесины и сантехника согласно дизайн проекту.

Холодный контур
от 55 000 ₽ за м2
Заказать
Тёплый контур
от 60 000 ₽ за м2
Заказать
White box
Индивидуально
Заказать
Под тапочки
Индивидуально
Заказать
Оставьте заявку,
и получите бесплатнуюконсультацию архитектора
Оставьте заявку, и получите  бесплатную консультацию архитектора

Нажимая на кнопку вы соглашаетесь с условиями политики конфиденциальности и обработки персональных данных

Похожие проекты
Мы используем cookies
Этот сайт использует файлы cookies для обеспечения удобства пользователей, анализа трафика и персонализации контента. Продолжая пользоваться сайтом, вы соглашаетесь с использованием файлов cookies.
Подробнее
Рубкофф - это более 750 построенных домов в Москве и МО
  1. Строим под тапочки - с внутренней отделкой, меблировкой и ландшафтным дизайном
  2. Нажимая «Продолжить» или закрывая форму, вы соглашаетесь с использованием cookie-файлов и обработкой персональных данных
x