Мы можем сэкономить Вашему бюджету на стройку до 630 000 ₽
Друзья, проработали планировки и оптимизировали сметы еще 2х проектов.
⠀
Мы можем сэкономить Вашему бюджету на стройку до 630 000 ₽ уже на первом этапе работ без потери в качестве.
⠀
Это финальные цены 2020 года. Предложение действительно
до 20.12.2020.
⠀
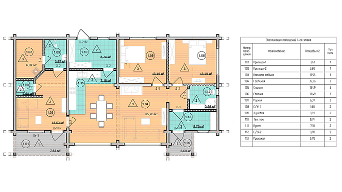
Визуализации проектов и планировки в карусели, листайте!
⠀
Проект дома «Гринвуд»
▪ 273 м²
▪ 3 спальни
▪ Терраса, балкон, второй свет
▪ Стоимость: 9 497 000 ₽/ 34 788 ₽/м²
⠀
Проект дома с баней П-228 «Куркино»
▪ 140.3 м²
▪ 2 спальни
▪ "Банное крыло" - отдельное крыло с парной, душевой и комнатой отдыха
▪ Стоимость: 5 313 000 ₽/ 37 868 ₽/м²
В стоимость входит:
• Фундамент
• Ростверк из лиственницы
• Домокомплект из клееного бруса
• Сверловка отверстий под скрытую электрику
• Стропильная система
• Мягкая кровля DOCKE Premium (Цюрих)
• Снегозадержатели Aquasystem (Германия)
• Водосточная система DOCKE LUX
• Окна VEKA 70 профиль, белые
• Логистика
• Обработка наружных торцов на заводе составом TEKNOL JRM (или аналогом)
• И другие позиции
Оставить заявку
Спасибо за вашу заявку. Мы изучим все данные и с вами свяжемся.
Оставить заявку
Спасибо за вашу заявку. Мы изучим все данные и с вами свяжемся.
Обсудить проектСпасибо за вашу заявкуЕсли у вас вопрос по уже купленной недвижимости, напишите нам в чат
Обсудить проектСпасибо за вашу заявкуЕсли у вас вопрос по уже купленной недвижимости, напишите нам в чат
Записаться на экскурсиюСпасибо за вашу заявкуНаш эксперт проведет для вас экскурсию и расскажет все подробно о доме.
Спасибо за вашу заявку. Мы изучим все данные и с вами свяжемся.
Что входит в стоимость
Получить презентацию
Спасибо за вашу заявку. Мы изучим все данные и с вами свяжемся.
Получить презентацию
Спасибо за вашу заявку. Мы изучим все данные и с вами свяжемся.
Свяжитесь с нами в вашем любимом мессенджере - обсудим ваш проект!